Gesundheitszentrum, Büsum - Neubau Physiopraxis

Projektbeschreibung

Entscheidend für die städtebauliche Positionierung ist das spannende Gegenüber von Alt und Neu, zwischen dem Ärztezentrums mit seinen vier windmühlenartig angeordneten Baukörpern und dem körperhaften Neubau. Dieser ordnet sich dem Bestand unter und hält respektvoll Abstand, sodass sich ein begrünter Innenhof ergibt. Die Gebäude werden entlang der zentralen Achse erschlossen. Der Altbau wurde bei laufendem Betrieb umgebaut. Aus den Einzelpraxen mit Mittelflur wurde ein zeitgemäßes Ärztezentrum mit gemeinsamer Anmeldung, Warten, Funktionsdiagnostik, Labor usw. Der bedeutendste Eingriff erfolgte beim Empfang, wo die vier massiven Gebäudeecken aufgelöst und durch einen gläsernen Körper ersetzt wurden.

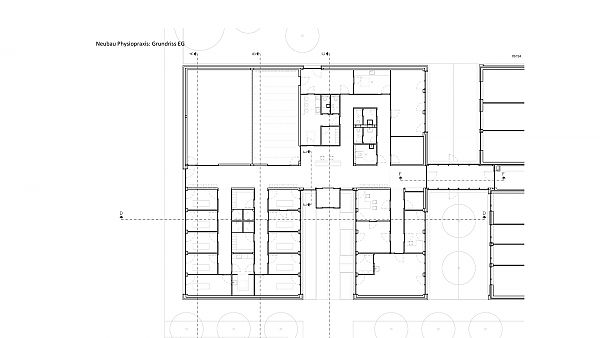
Der Neubau der Physiopraxis beinhaltet den Kurbetrieb mit Schlick- und Inhalationsanwendungen, die Behandlungsräume, eine Heilpraxis und einen Pflegedienst. Beide Gebäude sind barrierefrei. Der Neubau folgt einer klaren Architektursprache. Lichtdurchflutete, fließende Räume durchbrechen die Grenze zwischen Innen und Außen. Die Fassaden sind vertikal gegliedert und lockern die liegende Masse des Neubaus auf. Durch den zurückspringenden Eingang und den Hochpunkt des Therapiebereichs, wird eine Leichtigkeit erzeugt, die anspruchsvoll detailliert ist.

Fotos: Martin Lukas Kim