Sanierung und Erweiterung Haus L, Friedrichskoog

Projektbeschreibung

Alt und Neu in perfekter Harmonie

Für die neuen Eigentümer war von Anfang an klar, dass das historische Bauwerk aus den dreißiger Jahren des vorigen Jahrhunderts erhalten bleiben muss. Tragende Wände und Decken wurden ertüchtigt oder erneuert, der Keller verfüllt sowie eine neue Sohle hergestellt. Auch energetisch wurde das Gebäude umfassend saniert, die Holzfenster historisch korrekt erneuert, die Außenwände und das Dach gedämmt.

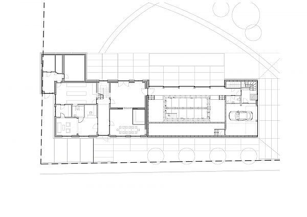
Durch das lichtdurchflutete Foyer betritt man den Altbau. Benachbart befindet sich die großzügige Lobby mit Rezeption. Gegenüber befindet sich der Gastraum mit der historischen Bar. Über das Treppenhaus gelängt man ins Obergeschoß zu den hochwertig ausgestatteten Maisonette-Ferienwohnungen mit ein oder zwei Schlafräumen. Hier, wie im ganzen Haus, wurden behutsam die Qualitäten des historischen Bestandes herausgearbeitet und durch harmonische Farbgestaltung, Bäder und moderne Möbel ergänzt.

Dem Altbau wurde durch die Architekten ein moderner Anbau entgegengesetzt. Dieser umfasst den großzügigen Wellnessbereich mit Schwimmbad mit Sonnenterasse, Sauna und Ruheraum sowie die Betreiberwohnung. Die bodentiefen Fenster und Schiebetüren lösen die Grenzen von Innen- und Außenraum auf. Der Neubau ist ein Holz-Skelett-Bau mit Holztafelbaufüllungen. Das Tragwerk und die Sichtdecken prägen mit Ihrem natürlichen Charme die Innenräume. Die äußere Gestaltung ist minimalistisch und anspruchsvoll detailliert. Spannungsreich und selbstbewusst stehen sich Alt- und Neubau gegenüber und harmonieren zugleich als Ensemble.

Fotos: ArchImage und JEBENS SCHOOF ARCHITEKTEN BDA