Erweiterung zur OGS - Grundschule Op de Host, Horst

Projektbeschreibung

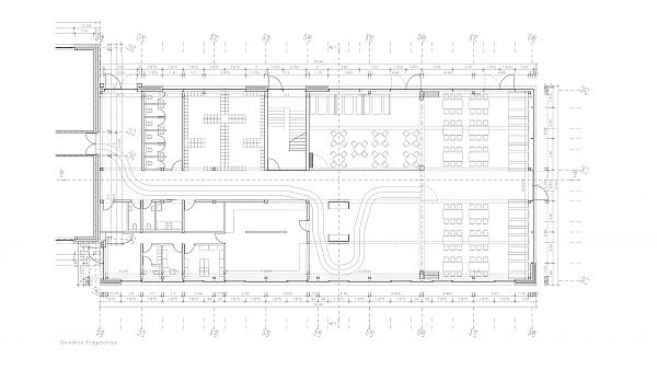
Für die Grundschule Op de Host in Horst wird ein zweigeschossiger Erweiterungsbau zur Unterbringung der Offenen Ganztagsbetreuung realisiert. Der Neubau wird für die Betreuung von bis zu 200 Kindern dimensioniert. Der Neubau nimmt die Proportionen, Dachform und Fassadengliederung des Bestandsgebäudes auf und fügt sich so harmonisch in das beste-hende Schulensemble ein. Der Übergang zum Bestand wird über eine gläserne Fuge ausgebildet, die zugleich den neuen Haupteingang markiert.

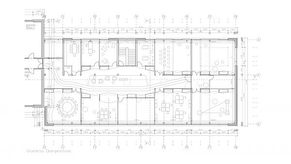
Im Erdgeschoss sind eine flexibel nutzbare Mensa mit Ausgabeküche, sowie Garderoben- und Sanitärbereiche angeordnet. Eine vorgelagerte Terrasse erweitert den Aufenthaltsbereich der Mensa und schafft einen direkten Bezug zum Außenraum. Das Obergeschoss wird von einer zentralen Agora erschlossen, die als offene Mittelzone fungiert und von unterschiedlich konzipierten Betreuungsräumen umgeben ist. Großzügige Verglasungen und offene Raumbezüge prägen das helle, einladende Innenraumkonzept. Die Raumstruktur ermöglicht ein hohes Maß an Flexibilität und unterstützt das offene pädagogische Konzept der Schule und der Ganztagsbetreuung.

Visualisierungen: JEBENS SCHOOF ARCHITEKTEN BDA